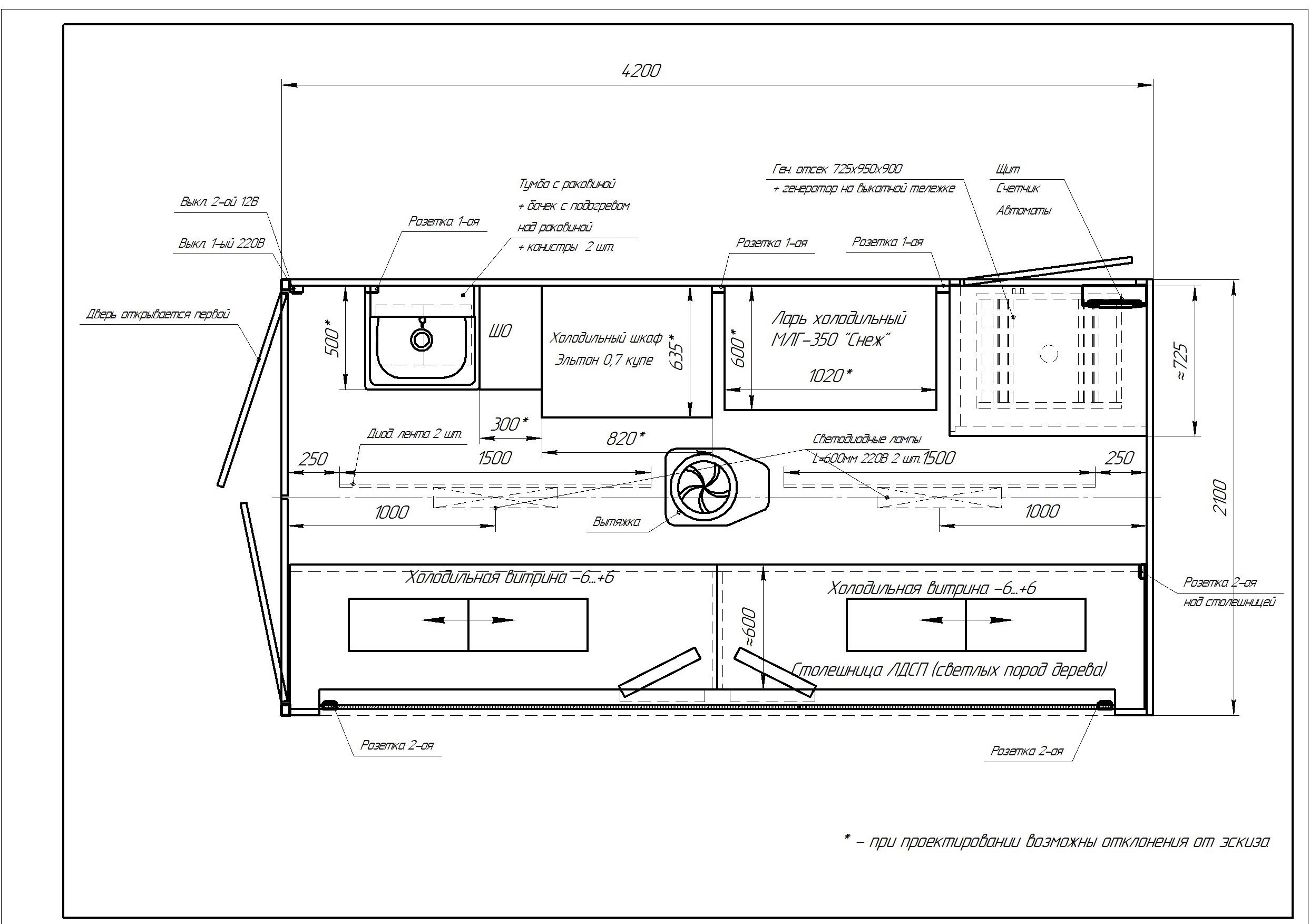
На техническом Совете правления Татпотребсоюза, с участием поставщиков спецтранспорта, рассмотрено техническое задание на производство автолавок в текущем году. Надо отметить, что поставщики учли многочисленные предложения и пожелания представителей наших райпо, кооперативов и просто – тех людей, которые непосредственно работают на указанных автолавках. В частности, в автолавке 2020 года предусмотрен современный дизайн, обеспечено наилучшее эстетическое оформление, торговая витрина и шкаф-купе будут изготовлены самим поставщиком, с учётом пожеланий эксплуатирующих автолавки работников, продавцов и даже простых покупателей.
 30 4,2х2,1х2,2 схема.jpg)
Современная витрина и шкаф-купе обеспечивают необходимый температурный режим от 0 до +7 градусов Цельсия. Намного усилены рама и рессоры, изменено расположение вспомогательного оборудования, для исключения аварийных ситуаций в период эксплуатации.
“Автолавка-2020” получила высокую оценку технического совета и дано “добро” на её изготовление. Как ранее было отмечено, в текущем году их поставят на сумму 20 млн. рублей.